Français English

Stones, air, axioms / Delme

Synagogue de Delme, France - 2015

avec Jean-Luc Guionnet

===
Fèn te ko ro, nka kow bè ro kolo ntè (Il n'y a rien dans les choses mais toutes les choses ne sont pas sans contenu.)

De par son histoire et son exceptionnelle acoustique, l’ancienne synagogue de Delme constitue l’écrin idéal pour accueillir
une installation sonore sur mesure et in-situ. Jean-Luc Guionnet
et Thomas Tilly laissent le lieu délibérément vide, offrant au visiteur une expérience de l’architecture, à la fois visuelle et sonore. En redoublant l’espace bâti de fréquences, mais aussi de voix,
de notes instrumentales, de rythmes, et de silences, les artistes proposent à tout un chacun une situation d’écoute privilégiée : qu’elle soit flottante ou attentive, statique ou en mouvement,
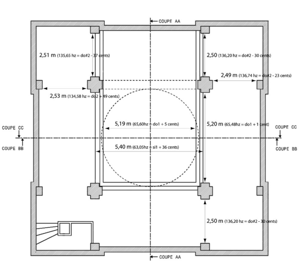
cette écoute est le gage d’une perception autre du lieu, redessiné en creux par le volume d’air qu’il contient et le son qui s’y déplace. La « partition » de Stones, Air, Axioms / Delme est conçue d’une part
à partir des plans de l’architecture, dont les mesures principales
ont été traduites en sons et en ondes, et d’autre part à partir d’enregistrements de voix et d’instruments, diffusés dans l’espace. Les voix en question mêlent différentes langues, familières
ou étrangères, compréhensibles ou pas, matières sonores abstraites autant que véhicules d’un sens qui se dérobe dans la succession
de ses échos. De la prière dogon traduite d’une langue à une autre
au témoignage intime d’une expérience mystique, ces voix
se mêlent pour former une architecture de sons et de signes,
propice au décloisonnement de tous les sens.

« Avec Stones, Air, Axioms / Delme, nous prenons la synagogue avec toute sa charge historique, l’importance de sa fonction passée. Nous tendons, quitte à les forcer, dans l’épaisseur même de cette charge, des relations entre
de la voix, des fréquences, et des intervalles de temps. La parole est d’abord prise pour sa dimension de témoignage et de singularité radicale. Les fréquences et les intervalles sont pris pour leur capacité à mesurer et retracer l’architecture en un plan sonore. Les témoignages ont à voir avec le sacré, les langues
sont disparates, les traductions sont aussi présentes, aucune exhaustivité,
peu de rationalité président à leur choix. »

  • L’appréhension du lieu

  • Le lieu est vide, blanc, seul le bruit de fond extérieur transparait. Nous décidons d’y amener du son.

  • Il y a la forme du bâtiment et ses deux étages. Comme toujours dans Stones, Air, Axioms, nous relevons une série de mesures métriques qui servent de base à la composition.

  • Il y a la charge historique du bâtiment, nous l’abordons en intégrant de la voix, sans savoir encore comment.

  • La place des haut-parleurs

  • Nous choisissons un type de diffusion du son en fonction de l’espace, du volume d’air, des sens potentiels de circulation. Douze haut-parleurs sont fondus dans la blancheur du lieu, à l’intérieur, invisibles. Un dernier est placé à l’extérieur, en évidence, comme un appel à pénétrer l’espace.

  • La composition des objets

  • Les mesures relevées sont traduites en fréquences, puis en notes.

  • Nous enregistrons ces notes jouées par des instruments, de la manière
    la plus sèche et analytique possible, loin du bâtiment, en studio. Nous les conservons telles qu’elles ont été jouées, avec toutes leurs perfections et imperfections.

  • Nous enregistrons aussi des ondes sinusoïdales correspondant à ces mêmes mesures.

  • Nous décidons d’aborder la mystique religieuse propre au lieu par l’utilisation d’un texte sacré en complet décalage avec le lieu: une prière des morts Dogon.

  • Nous utilisons une version enregistrée de ce texte en sigi so (langue secrète de la mythologie Dogon), en français et en hébreu. L’enregistrement est également réalisé en studio, encore une fois de la manière la plus analytique possible.

  • Nous composons une série de pièces courtes que nous appellons « objets ». Ces pièces, de durées variables, sont composées des sons instrumentaux, des voix enregistrées, des ondes sinusoïdales. Chaque objet est composé pour un ou deux haut-parleurs
placés dans le lieu.
    Le texte, prière des funérailles, introduction avec le bâton chantant « abiba »:

Bonjour tout le monde. Nous sommes tristes aujourd’hui. Qu’est-ce qui se passe ? Quelqu’un est mort. Comment allons nous faire ? Nous allons nous préparer. Nous avons trop de viande. Cette viande n’est pas à manger. Nous nous préparons. Les femmes sont arrivées. Les hommes sont arrivés. Les femmes ont les calebasses dans leurs mains. Les hommes ont les lances dans leurs mains. Les hommes ont les fusils dans leurs mains. Les hommes jouent déjà avec leurs tambours. Le corps est à amener dans la grotte qui sera le lieu de son éternel repos.

  • Les objets et l’espace installé

  • Nous plaçons les objets dans le système de diffusion, ces derniers
sont lus aléatoirement et entrecoupés de plages de silences.
À partir de ce moment nous n’avons plus de contrôle sur le mixage final, le déclenchement des sons, leur comportement dans l’acoustique singulière du bâtiment.

  • Nous plaçons deux enregistrements dans le haut-parleur extérieur, témoignant d’expériences personnelles et mystiques :
d’une part Marc, un ami de Jean-Luc, témoignant de ses visions; d’autre part Principal sans diplômes, un guérisseur traditionnel Guersé bénissant Thomas, en 2004.